Housing Options
Find the right accommodations for you.
Living on campus helps establish a sense of belonging, acquire critical thinking skills, make ethical decisions, and assume self-responsibility. On-campus housing provides a supportive, well-maintained environment where students can learn, develop, and succeed.
On-campus housing is available in three apartment complexes located adjacent to the main academic facilities - Campus Meadows, College Hill, and Reservoir Run. All residential facilities are smoke-free, fully furnished apartments with a bathroom, bedrooms, living room, and kitchen. Semester rent rates include the cost of utilities and amenities. Amenities include coin-free laundry facilities, high definition cable television (HDTV), and wireless internet access (Wi-Fi).

Campus Meadows
Campus Meadows is our largest complex primarily offering four-person apartments in the following layouts: townhouses (two double bedrooms upstairs), two-bedroom flats (two double bedrooms or one double bedroom and one triple bedroom), and traditional residence hall-style flats (one bedroom with up to five students).
Campus Meadows Floor plan Town House

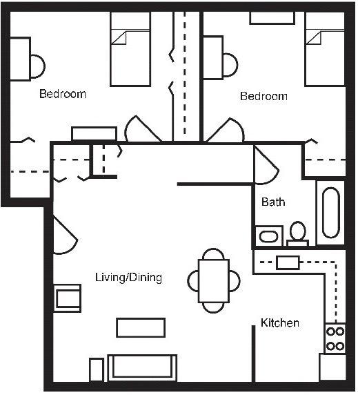
Campus Meadows Floor plan Two Bedroom Flat


College Hill
College Hill offers different styles of apartments, including two bedrooms shared (one single bedroom and one double bedroom).


Reservoir Run
Reservoir Run features four-person suite-style apartments. Each apartment includes a living room, full kitchen with microwave, laundry room, four single bedrooms, and two bathrooms. This residential community is reserved primarily for second-year students.
